Gå till huvudinnehåll

Göteborg Hisingen

Halvorsäng

Industri Kontor Lager/Logistik Nyproduktion

Yta

4 300 kvm

Arbetsplatser

5 - 50 st

Så räknar vi antal arbetsplatser

Detta spann är en uppskattning. Det finns flera faktorer som påverkar hur många arbetsplatser som kan rymmas i en lokal. Inte bara storleken på själva lokalen utan även hur den disponeras. Exempelvis kräver en lokal med många enskilda kontor mer plats än öppen planlösning. Andra begränsningar kan vara tillgången på luft och kyla, eller utrymningsvägar.

Tillträdesdatum

2026-09-01

Våningsplan

0

Nu finns chansen att etablera sig på Halvorsäng Logistikpark!

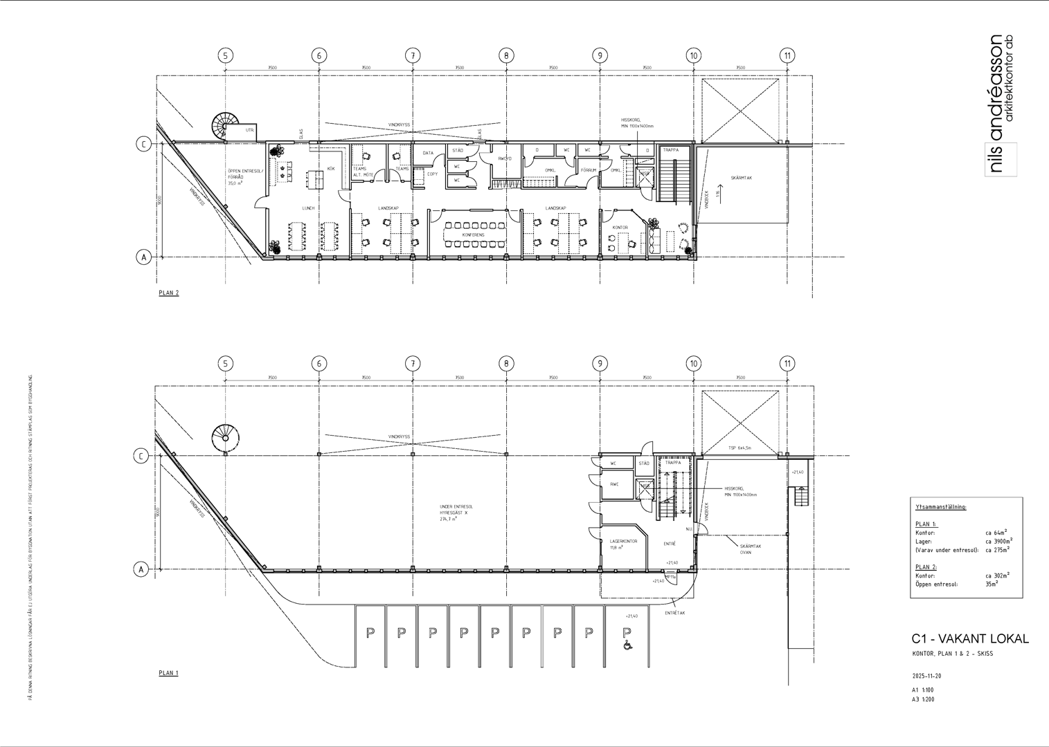
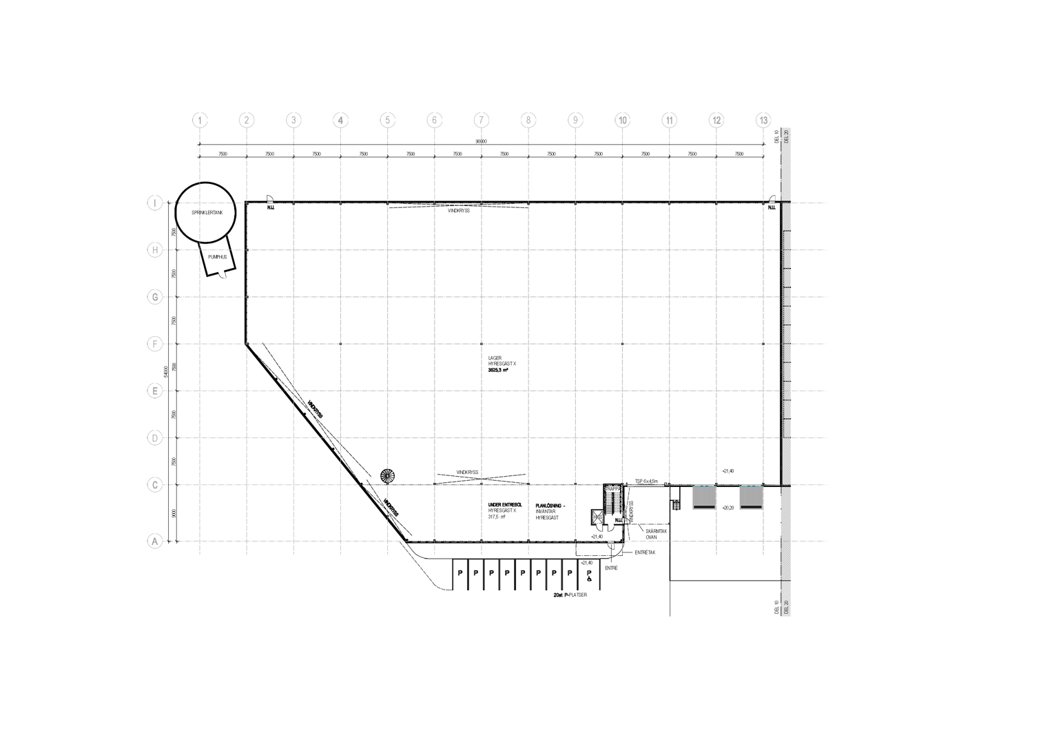
Under hösten 2026 kommer det att finnas nybyggda lediga lager- logistik- och kontorsytor om ca 4 300 kvm. Ytan är belägen på markplan samt entresol. Lager ca 3 900 kvm och kontorsyta ca 400 kvm. Enkelt att ta sig mellan våningsplan via en interntrappa eller hissen. Två omklädningsrum med wc och duschar. På markplan finns ett lagerkontor placerat. In- och utlastning via lastbrygga med två portar samt en port i markplan. Bottenplattan är dimensionerad för 5 000 kg/kvm och entresol är dimensionerad för 250 kg/kvm. Fri takhöjd ca 11,7 meter. Det finns tillgång rangeryta >50 m.

Halvorsäng Logistikpark – Nordens nya hållbara logistiknav i direkt anslutning till Göteborgs hamn. Ett sällsynt bra läge för import och export med utmärkta förbindelser till hela Skandinavien.

Var med från start och forma framtiden här tillsammans med oss! Castellum skapar i samarbete med Göteborgs Hamn AB en ny, modern logistikpark med hållbarhetstänk och bra tillfartsvägar helt nära Nordens största hamn, kombiterminal, industrier och de stora trafiklederna till och från Göteborg.

Med andra ord, ett guldläge för effektiv logistik.
E-handel, fordonskomponenter, livsmedel, 3 pl eller något helt annat. Totalt planerar vi att uppföra sex stycken väldisponerade byggnader i varierande storlekar.

Välkommen att kontakta oss för mer info och visning!

Planlösning

På Halvorsäng Logistikpark har du möjlighet att vara med och påverka utformningen av dina nya lokaler för både dagens och morgondagens behov.

Området

Om Göteborgs hamn
Göteborgs hamn är Nordens största hamn och primära godsnav, och en viktig länk mellan Atlanten och Östersjöområdet. Hamnen ligger i hjärtat av Skandinavien med 70 procent av Skandinaviens industri och befolkning inom 50 mils radie. Hamnen erbjuder ett brett och tätt linjeutbud och har en välutvecklad infrastruktur som hanterar världens största containerfartyg varje vecka, såväl som frekvent rorotrafik till och från de stora centraleuropeiska godsnaven.
Effektiva landförbindelser via flera europavägar och 70 järnvägsavgångar i veckan garanterar snabba flöden och leveranser till den skandinaviska marknaden.

Göteborgs hamn har ett upptagningsområde som omfattar tio nordeuropeiska länder, med sammantaget 190 miljoner invånare, och är den enda hamnen i Sverige med kapacitet att ta emot de största oceangående containerfartygen. Det finns flera järnvägsterminaler i hamnområdet, bland annat Arken Kombiterminal.

Kommunikationer

Tre huvudstäder inom 50 mil
Under tjugo år i rad har Göteborgsregionen utsetts till Sveriges bästa logistikläge när branschtidningen Intelligent Logistik rankar Sveriges logistiklägen. Göteborgs exceptionella distributionsläget beror på närheten till Skandinaviens största containerhamn med import/export och inte minst ett starkt tågpendelnät. I Göteborg verkar näringslivets stora aktörer, här passerar årligen 150 miljoner ton varor och varje vecka anlöper över 100 fraktfartyg med gods från hela världen. Godskedjan stärks av Göteborg Landvetter Flygplats som erbjuder internationell flygfrakt. Terminaler och lager i nära anslutning till flygplatsen erbjuder den snabbaste omlastningen av gods i hela Europa.

  • Nyproduktion
  • Göteborgs Hamn
  • Logistik/lager

Faciliteter i fastigheten

Lastport Lastkaj Parkering Skyltläge

Service i området

Restaurang Grönområde

Karta

Dokument

Kontaktperson

Uthyrare

Mathias Grahn

Fråga oss!

Nyfiken på den här lokalen? Eller behöver du hjälp att hitta rätt lokal för din verksamhet? Oavsett om du vet exakt vad du söker eller om du behöver rådgivning, så finns vi här och hjälper till.

Vi ser fram emot att höra av dig.

Intresseanmälan

Kontaktinformation

All behandling av personuppgifter sker i enlighet med dataskyddsförordningen och annan dataskyddslagstiftning. Läs mer om GDPR

Liknande lokaler i Göteborg