Gå till huvudinnehåll

Göteborg Hisingen

Ringögatan 29

Industri Kontor Lager/Logistik

Yta

2 450 - 2 900 kvm

Arbetsplatser

10 - 25 st

Så räknar vi antal arbetsplatser

Detta spann är en uppskattning. Det finns flera faktorer som påverkar hur många arbetsplatser som kan rymmas i en lokal. Inte bara storleken på själva lokalen utan även hur den disponeras. Exempelvis kräver en lokal med många enskilda kontor mer plats än öppen planlösning. Andra begränsningar kan vara tillgången på luft och kyla, eller utrymningsvägar.

Tillträdesdatum

2027-05-01

Våningsplan

0

Nyproducerad fastighet på centrala Hisingen!

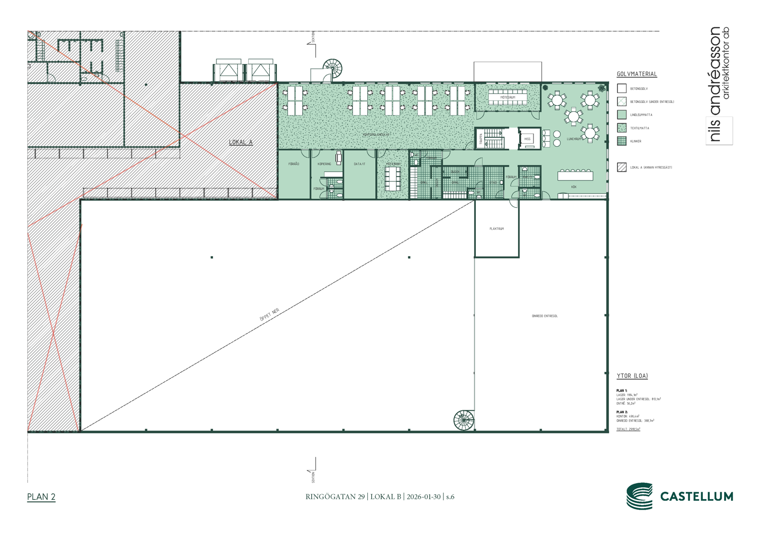
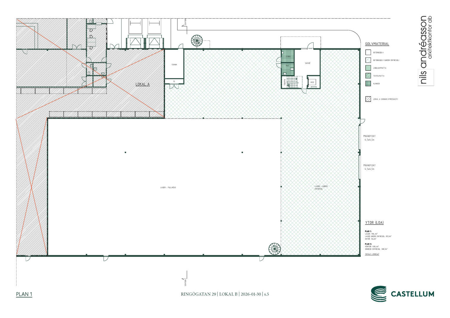
På Ringön kan vi erbjuda en unik etablering för lager/industri och kontor. Här får ni möjlighet att tillsammans med oss utforma den perfekta nyproducerade lokalen som passar er verksamhet. Lagerdelen blir ca 2000 kvm varav 1200 kvm har en takhöjd på 8 meter. Kontorsdelen tillkommer och ytan är flexibel mellan ca 450 - 800 kvm.

Fastigheten kommer att delas med ytterligare en hyresgäst.

Vi bygger och äger och ni förhyr lokalen, inför och under byggtiden har vi ett nära samarbete med arkitekt och projektledare.

Lokalen är belägen i ett mycket strategiskt läge och attraktivt område med lättillgänglighet från de större lederna och Göteborgs centrala delar.

I närområdet finner ni ett brett utbud av populära restauranger som Aldardo, Saras Husmanskost, Ivans Pilsnerbar och restaurang Paradis, alla belägna på Ringön.

Precis utanför fastigheten finns busshållplats där busslinje 47 trafikerar, vilket gör det enkelt och smidigt att ta sig hit.

Tveka inte att kontakta oss för mer infor och visning!

Planlösning

Lokalens utformning och planlösning planeras ihop med hyresgästen.

Området

Centralt beläget på Hisingen och nära centrala stan.

Kommunikationer

Nära allmänna kommunikationer.

Fastigheten

Mark som skall bebyggas.

  • Nyproducerat
  • Lättillgängligt
  • Nära busshållplats

Service i området

Restaurang

Karta

Dokument

Kontaktperson

Uthyrare

Mathias Grahn

Fråga oss!

Nyfiken på den här lokalen? Eller behöver du hjälp att hitta rätt lokal för din verksamhet? Oavsett om du vet exakt vad du söker eller om du behöver rådgivning, så finns vi här och hjälper till.

Vi ser fram emot att höra av dig.

Intresseanmälan

Kontaktinformation

All behandling av personuppgifter sker i enlighet med dataskyddsförordningen och annan dataskyddslagstiftning. Läs mer om GDPR

Liknande lokaler i Göteborg