Örebro City
Utsikten
Nu skapar vi en ny arbetsplats mitt i Örebro, där framtidens arbetsliv möter en inspirerande och flexibel miljö. Utsikten är inte bara ett kontorshus; det är en plats där kreativitet, gemenskap och arbetsglädje står i fokus. Här kan du arbeta på det sätt som passar just dig, med en oslagbar utsikt över Örebro Slott och stadens takåsar.
Välkommen till en modern arbetsplats i hjärtat av Örebro
En arbetsplats i tiden
Kontorshuset Utsikten - här bygger vi inte bara arbetsplatser, vi bygger framtidsutsikter att längta till. Affärsliv förenas med det sociala i en varierad miljö - utomhus och inomhus. Här är platsen där framtidens arbetsliv växer fram – en plats där flexibilitet, gemenskap och hållbarhet möts.
Fastighet som totalrenoveras
Framtidsutsikter att längta till
I kontorshuset Utsikten på Olaigatan 15 i Örebro, erbjuder vi ett attraktivt läge mitt i stadens centrum. Lokalerna här är perfekta för företag som söker en dynamisk och tillgänglig arbetsmiljö, med närhet till både kommunikationer, service och stadens puls. Du har direkt tillgång till allt som behövs för en smidig arbetsdag – från restauranger och butiker till kollektivtrafik och parkeringsmöjligheter.
Fastigheten totalrenoveras just nu till att bli ett modernt, flexibelt och hållbart kontorshus. Projektet inkluderar en omställning från direktverkande el till energieffektiv bergvärme, vilket minskar både energikostnader och miljöpåverkan. Alla installationer byts ut till moderna lösningar, fönstren renoveras för att förbättra inomhusklimatet, och vi skapar en ny takterrass för ökad trivsel. Återbruk av material är en viktig del av projektet, där vi tar vara på befintliga resurser för att kombinera hållbarhet med modernisering.
Här kan vi erbjuda er enkelhet och bekvämlighet och hjälper er att forma era nya lokaler utifrån era behov. Med Castellums erfarenhet som fastighetsägare får du trygghet och hög servicenivå på fastighetsförvaltningen.
Personliga kontor och gemensamma ytor – med oslagbar utsikt
Här, på Olaigatan 15, finns möjlighet för er att flytta in i nyrenoverade lokaler. Här finns tysta arbetsplatser och kreativa mötesrum, loungeytor där ni kan luta er tillbaka och öppna kontorslandskap. Hållbarhet står i centrum. Precis som flexibilitet. Vi anpassar ytorna efter era behov.
Högst upp i huset kan ni nyttja generösa konferensrum och under våren, sommaren och tidig höst möts ni även av en oslagbar takterrass, med utsikt över hela stan. För avkoppling och utsiktsnjut eller möten i vårt utomhuskontor.
Med färdigupphandlade lösningar kan ni dessutom fokusera på er verksamhet och inget annat. Kaffe, kontorsstolar, passersystem och internet – sådana saker ordnar vi.
Gemensam takterass
På taket kommer det att finnas en stor takterass med fantastisk utsikt över Örebro slott och Örebro city. Här blandas umgängesytor med utomhuskontor som är ett hälsosamt komplement till det vanliga kontoret.
Konferensytor
Högst upp på våning 8 kommer det att finnas bokningsbara konferensrum. Ett lite större för upp till 20 personer och ett mindre för upp till 10 personer. Pentry, loungyta och takterass i nära anslutning.
Loungytor i skyn
Stor loungeyta med pentry på våning 8 i anslutning till bokningsbara konferensrum och takterassen. Passar perfekt till personalmöten, kundmöten eller varför inte ha AW:n här.
Serviceutbud
I bottenplan på huset ligger Apoteket och en kiosk. Det kommer även att finnas någon form av café eller restaurangverskamhet.
Hjälp med inredningen? Javisst.
Magnus Engström, Rumbla, om det unika inredningskonceptet
Välkomnande och levande är ledord i förvandlingen
Sebastian Lundberg, Vektor Arkitektur, om att ha himlen som tak
"Kontorshuset Utsikten erbjuder en perfekt kombination av centralt läge, modern design och flexibla ytor. Här får du en arbetsmiljö som inspirerar till kreativitet och tillväxt – samtidigt som du har allt du behöver nära till hands. Det är verkligen framtidens arbetsplats."Teresia Sjöström Kommersiell förvaltare
Projektpresentation
Ladda ner presentationen som pdf-broschyr så kan du i lugn ochro läsa mer om kontorshuset Utsikten på Olaigatan 15.
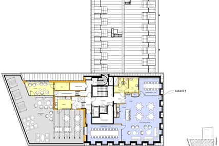
Exempel på våningsplan
Nyfiken på hur de 8 våningarna kommer att se ut? Vilken typ av arbetsplats passer er bäst? Här finns planlösningar med kontor,, förslag på möbleringar, översiket och orienteringsfigurer. Självklart kan dessa komma att ändras om ni har andra behov.
Projektfakta
| Planerad inflyttning | 2026 |
| Adress | Olaigatan 15, Örebro |
| Namn | Populärnamn Utsikten - Fastighetsbeteckning Gillet 22 |
| Lokaltyp | Kontor med servieverksamhet i bottenplan |
| Våningsplan | 8 |
| Uthyrningsbar yta | Cirka 4200 kvm |
| Kommunikationer | 200 m till Citylinjen (buss), resecentrum 750 m (tåg och buss). |
| Garage | Ja |
| Gemensamma ytor | Takterass, utomhuskontor, konferensrum, lounge. |
| Omklädningsrum | Ja |
| Serviceavgift | Inkluderar tillgång till takterass, utomhuskontor, konferens & lounge. Kaffe upphandling, internet, passersystem, städupphandling, omklädningsrum, tillgång till gym, cykelparkering. |
| Certifiering | Miljöcertifiering LEED O+M |
| Arkitekt | Vektor Arkitektur |
| Inredningsarkitekt | Rumbla |
Historien om byggnaden
Skandiahuset - dåtidens hållbara byggnad
Närområdet
Välkommen till Örebros hjärta!
Här befinner vi oss nära hjärtat av Örebro, ett charmigt och historiskt område där Örebro Slott utgör en imponerande mittpunkt. Slottet, beläget på en liten holme i Svartån, ger en medeltida prägel på staden samtidigt som den harmonierar med den moderna bebyggelsen omkring.
Olaigatan har bra förbindelser, och från Örebro Centralstation tar det bara några minuter till fots. Tack vare närheten till kollektivtrafik är området lättillgängligt, och det är enkelt att resa vidare, oavsett om du utforskar stadens omgivningar eller ska vidare till Stockholm eller Göteborg.
Från Olaigatan har du gångavstånd till Örebros citykärna med shopping, restauranger och kaféer. Drottninggatan, som är stadens huvudgata, ligger bara några minuter bort och här hittar du allt från kedjor till små, unika butiker.
Charmigt och historiskt område
Grönområden för återhämtning
Att jobba nära både Slottsparken och Stadsparken ger perfekta möjligheter för avkopplande lunchpromenader. De natursköna omgivningarna runt Svartån erbjuder en fin kontrast till kontorsmiljön och bidrar till en balanserad arbetsvardag.
Nära till lunchrestauranger och fik
Från Olaigatan 15 är det gångavstånd till ett brett urval av restauranger, kaféer och lunchställen som passar alla smaker. Här erbjuds allt från hälsosamma lunchalternativ till brett fikautbud där man kan ta en snabb paus och få ny energi.
Historisk och kreativ miljö
Med utsikt över Örebro Slott och Svartåns lugna vatten skapas en inspirerande atmosfär som främjar kreativitet och idéutbyte. Slottets imponerande närvaro ger området en unik karaktär och bidrar till en arbetsmiljö där historia möter modernitet.
Rikt kulturliv och aktiviteter
Med kultur och evenemang i närheten skapas en dynamisk känsla i området, vilket är en stor fördel för företagsaktiviteter och teambuilding. Närheten till Örebro Konsthall och Örebro Teater är också ett fint inslag för en kreativ och stimulerande pausmiljö.
Olaigatan 15
Välj färdsätt:
Kontakta gärna mig